Nav

W2 Kitchen Electrical E2 Kitchen Electrical
W1 Kitchen Electrical E1 Kitchen Electrical

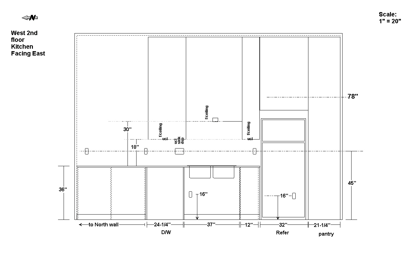
W2 East wall

 

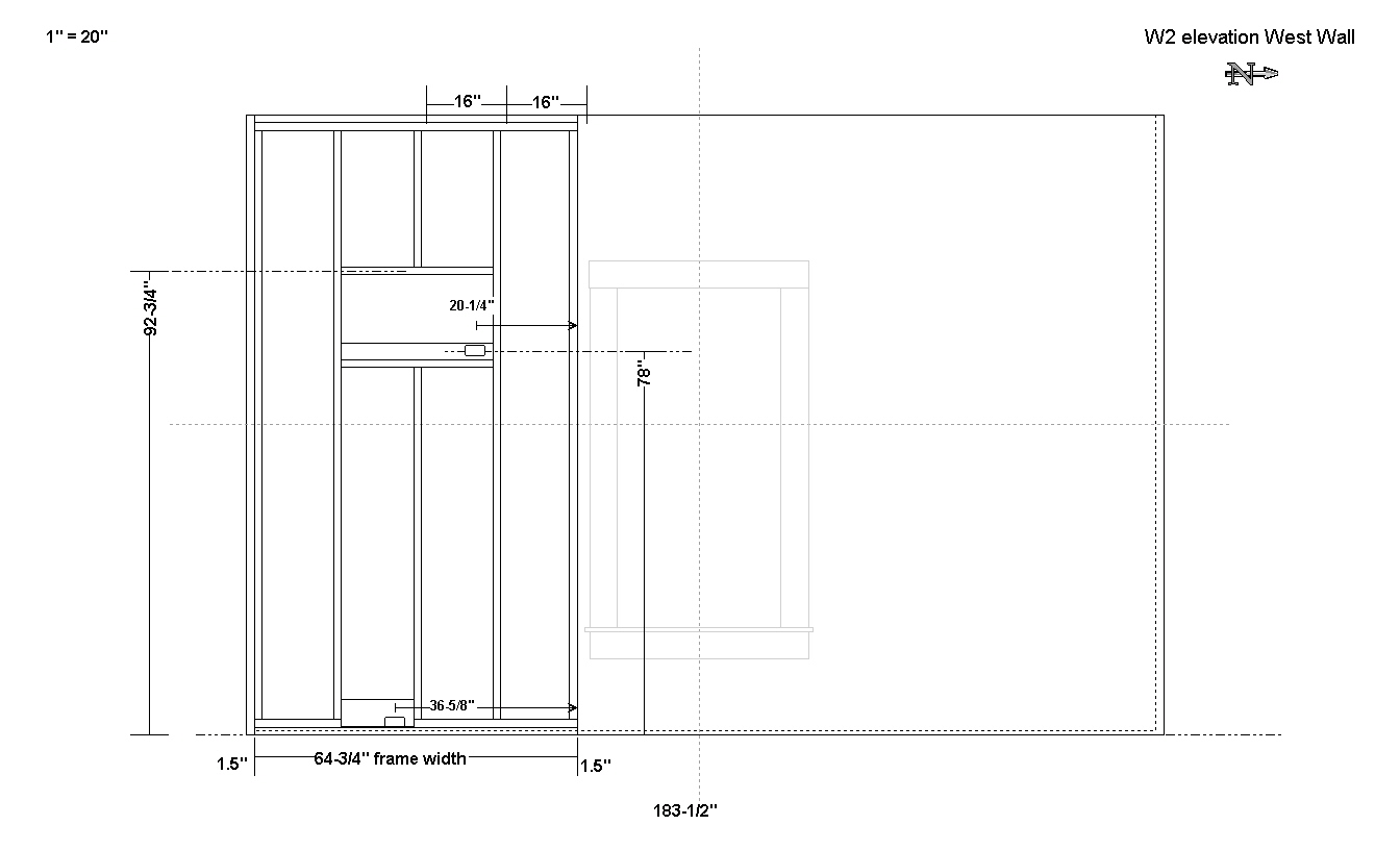
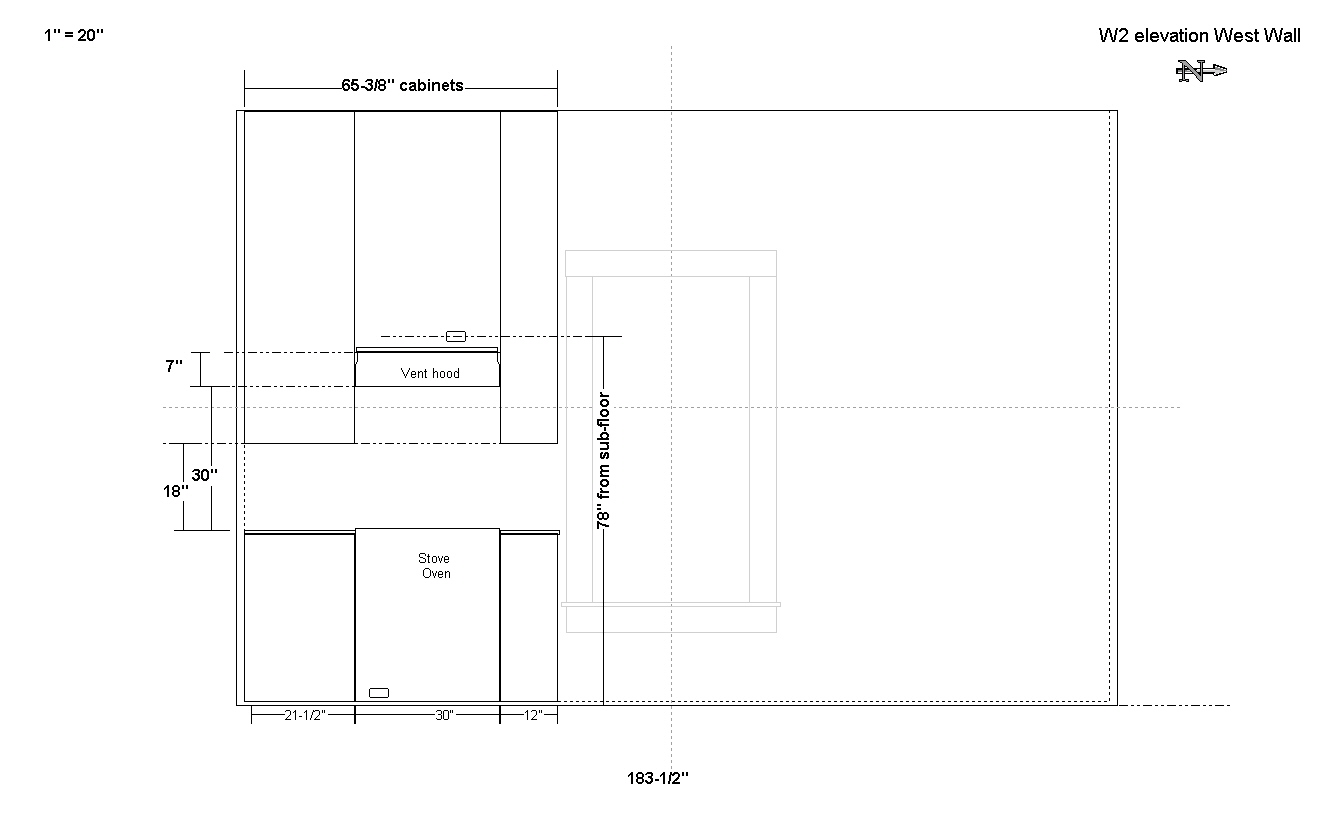
W2 West wall

 

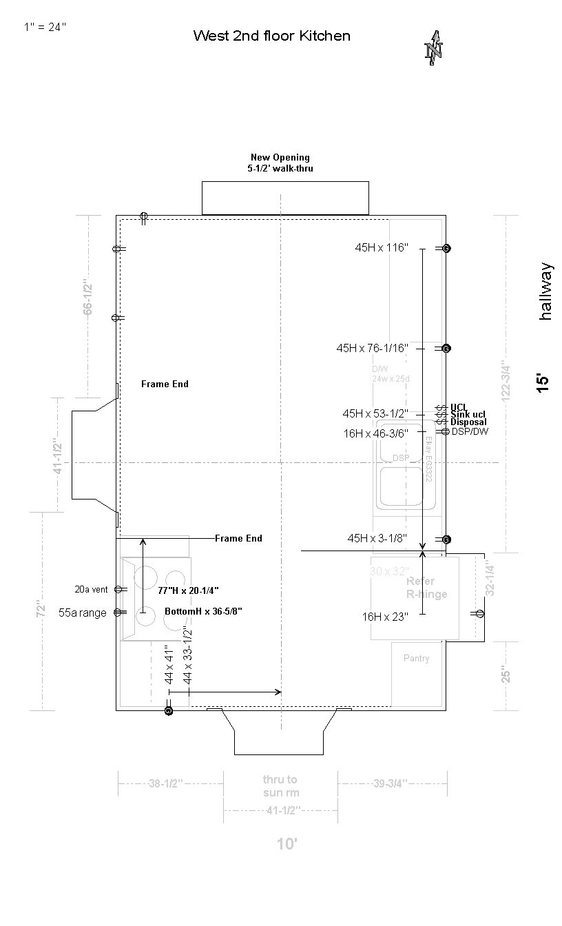
W2 Electrical Schematics