Nav

W2 Kitchen Electrical E2 Kitchen Electrical
W1 Kitchen Electrical E1 Kitchen Electrical

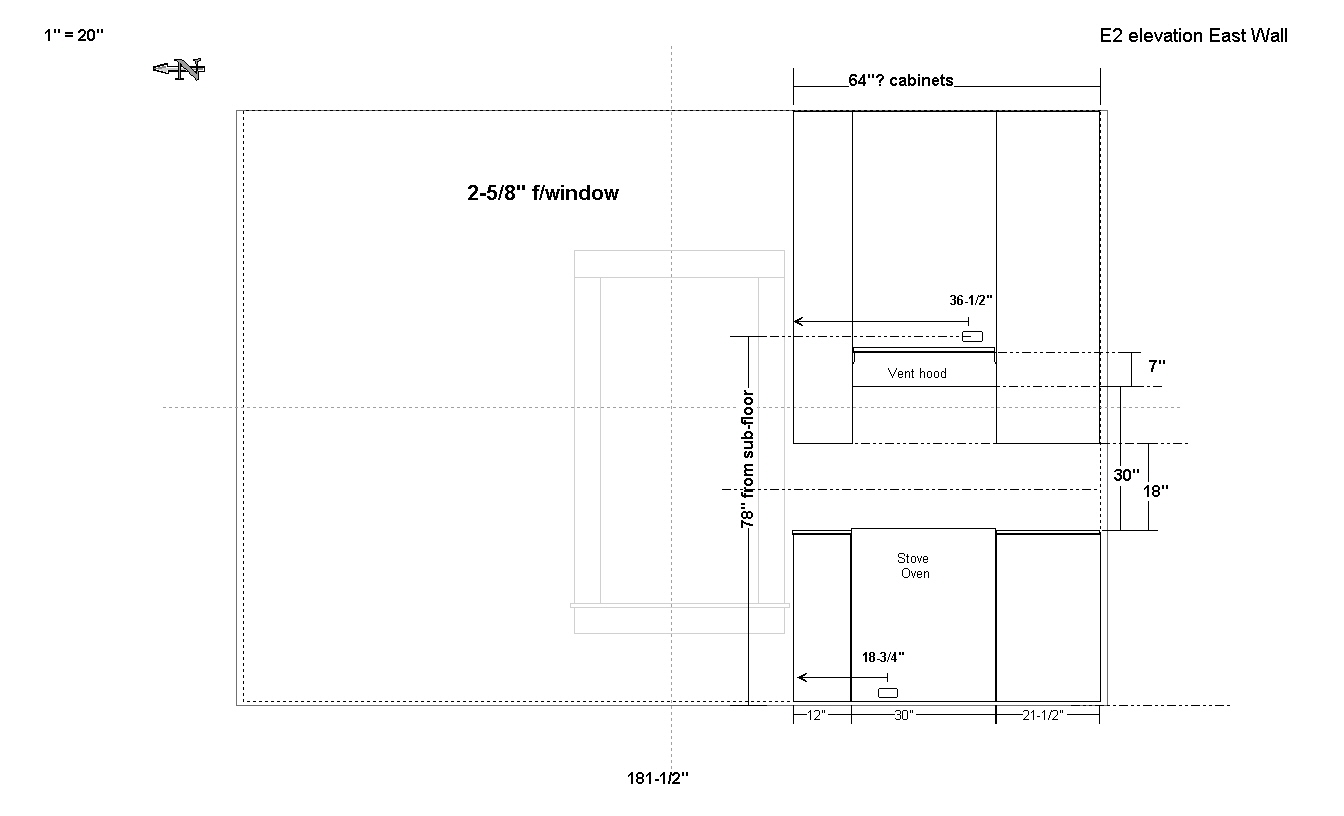
E2 East wall

 

 

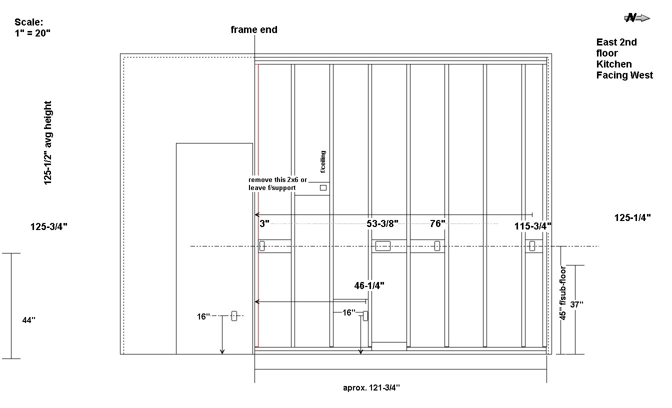
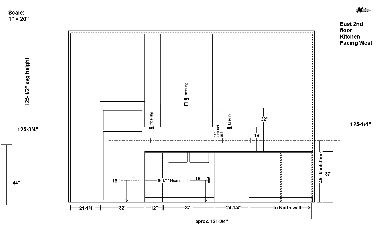
E2 West Wall

 

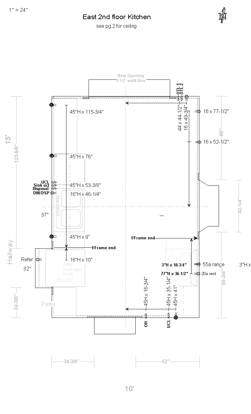
E2 Electrical Schematics