Nav

W2 Kitchen Electrical E2 Kitchen Electrical
W1 Kitchen Electrical E1 Kitchen Electrical

 

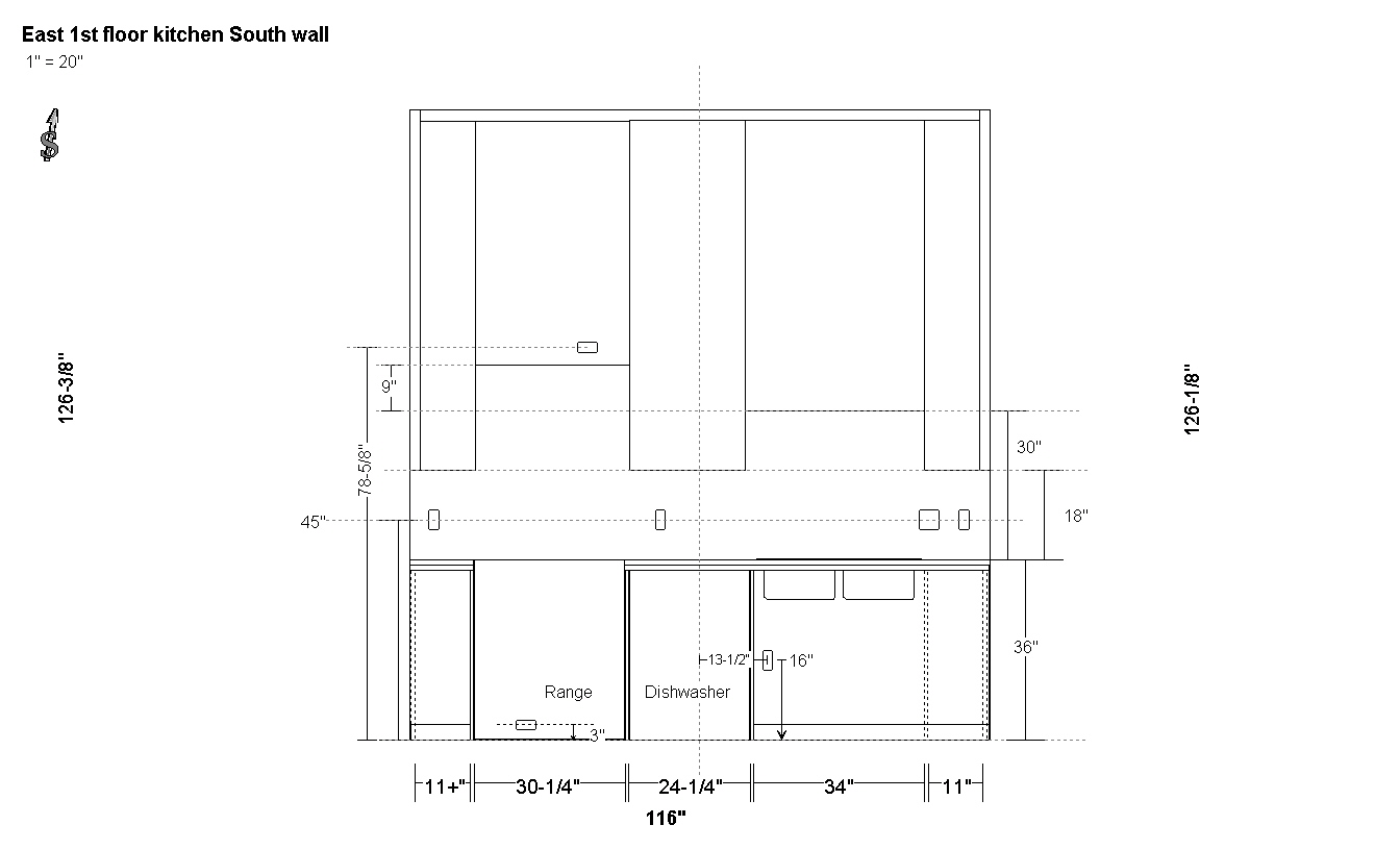
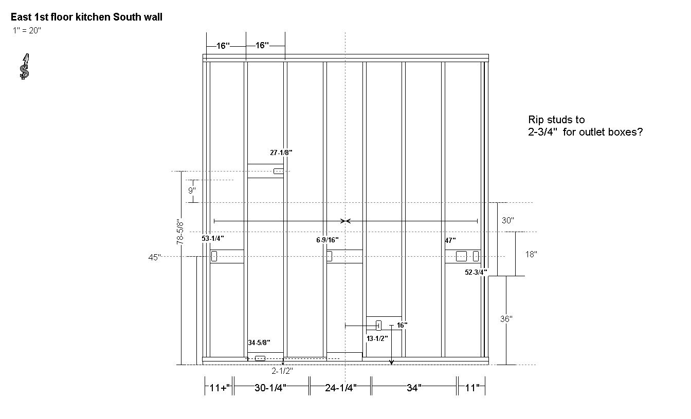
E1 South wall

 

 

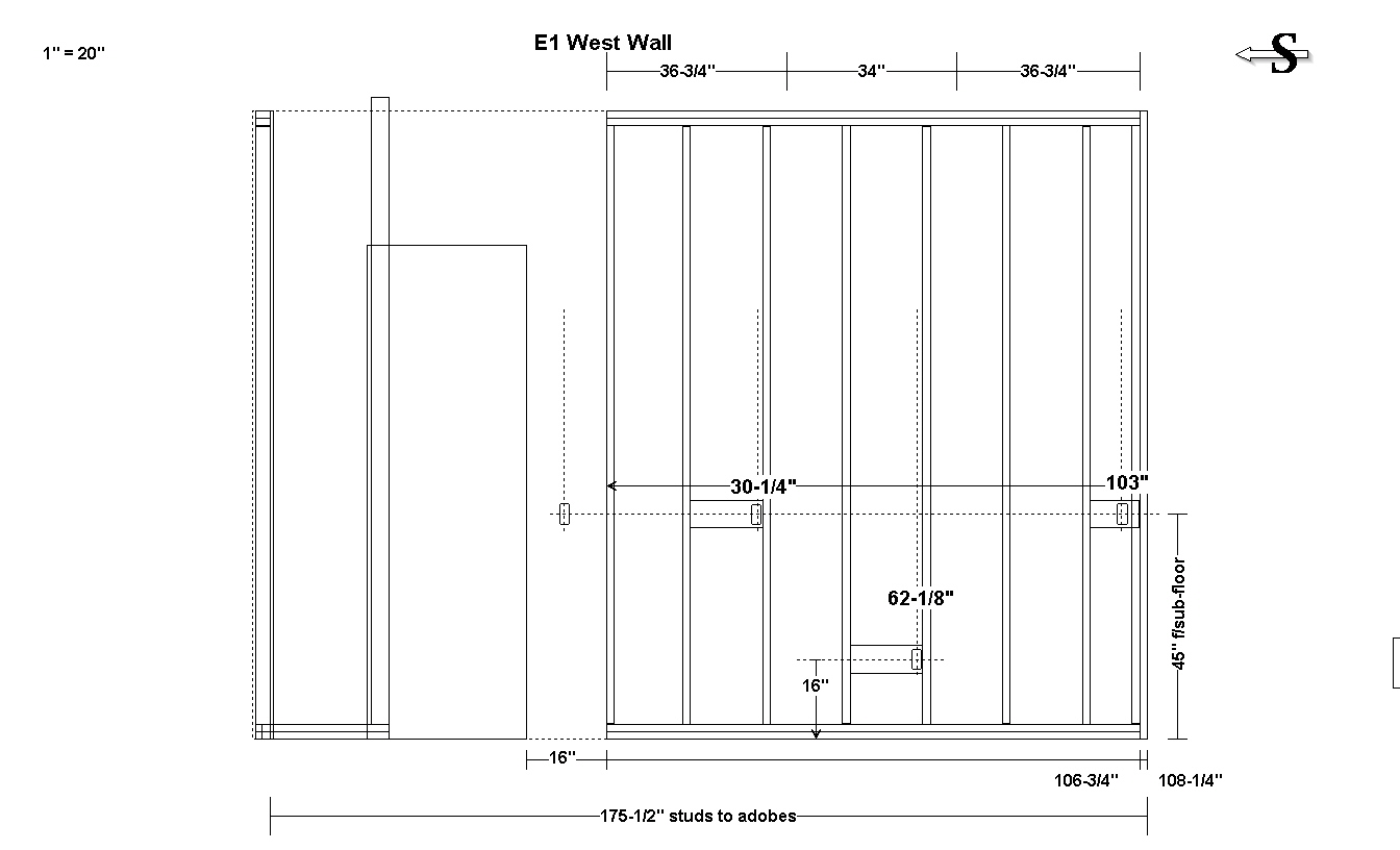
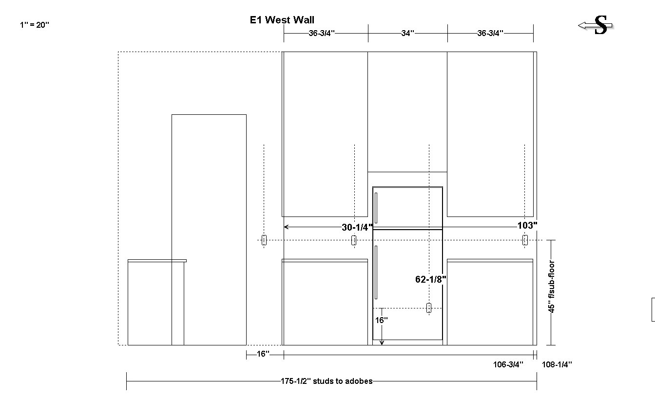
E1 West wall

 

 

E1 Electrical Schematics