Nav - Attic

Ceiling Fan placement is not fully determined yet.

 

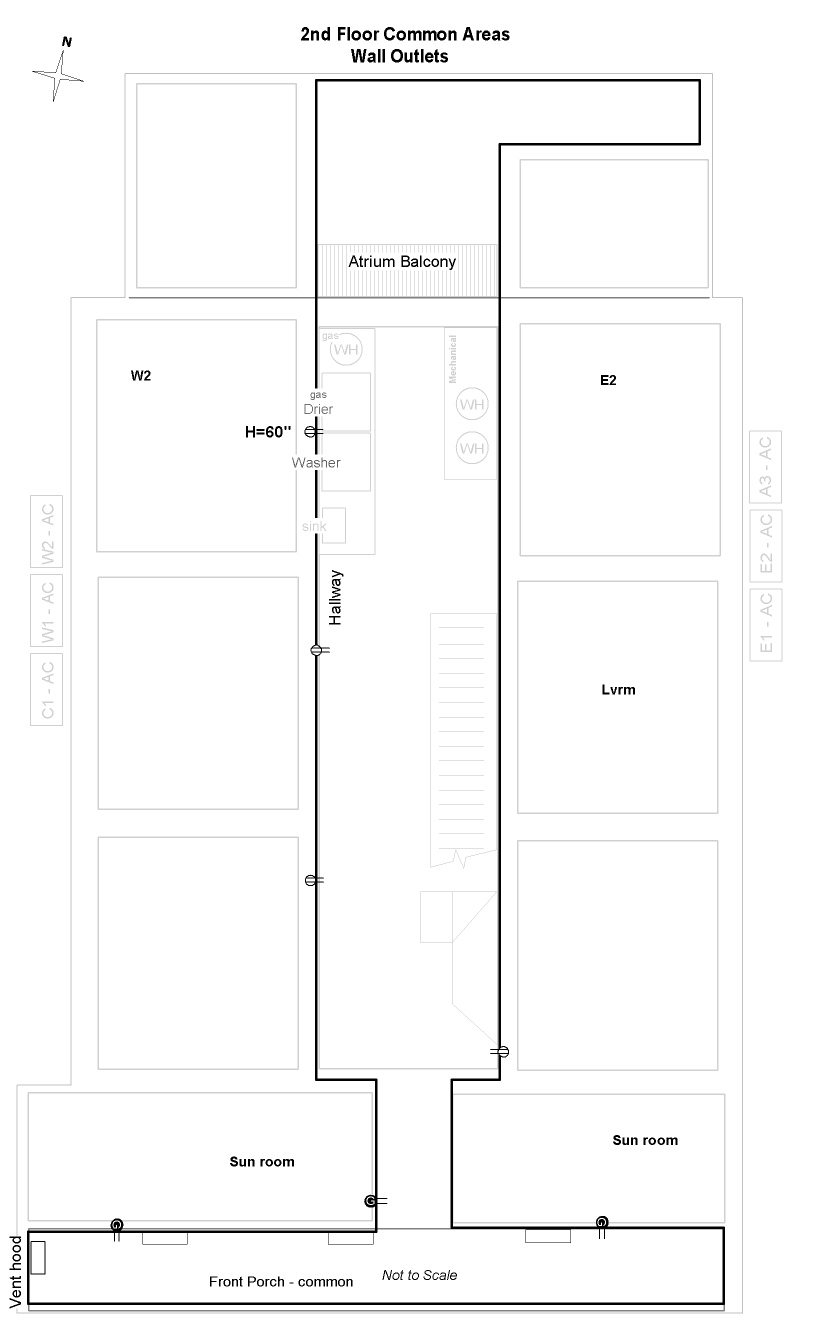
2nd Floor
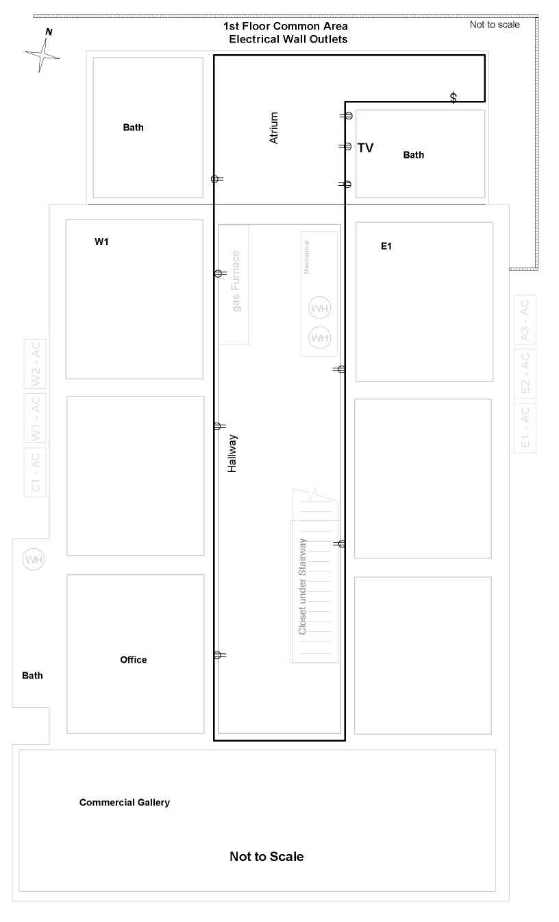
1st Floor