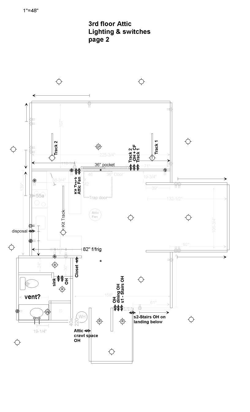
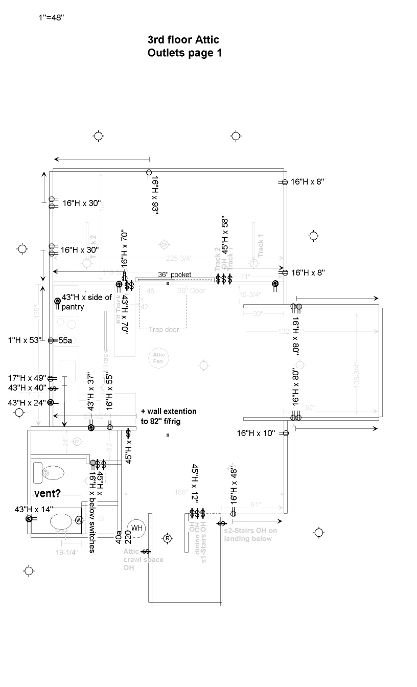
Nav                                               Attic Layout & Electrical - 5 images

Common area pages

               

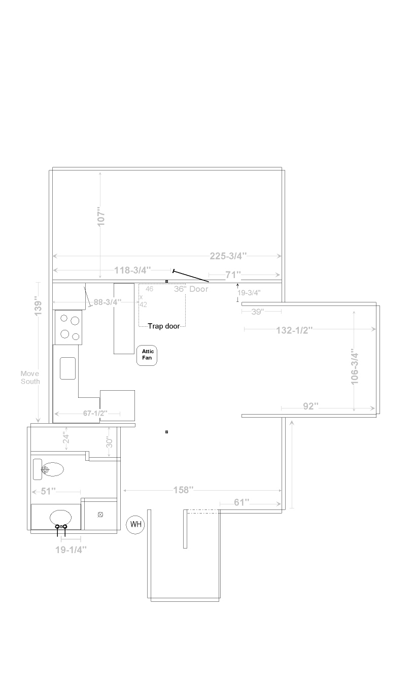
 With Pocket Door

 

 

 

 

Layout Below - Basic Layout, measurements below

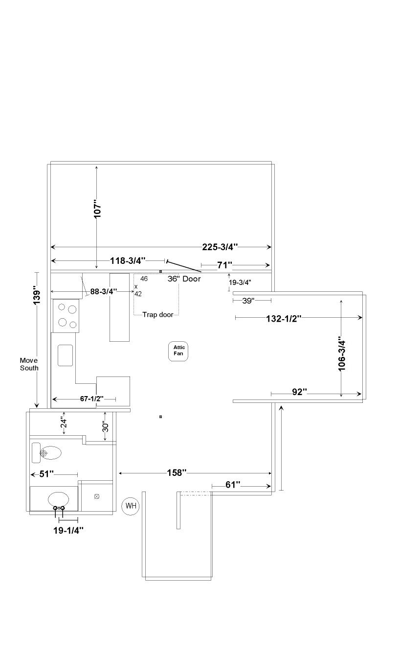
Measurements Below