Nav - Office Bath - Gas Pipe - Heater links

E1 - 3/4" supply; one T to 40000 btu water heater, inline to 11500 btu corner heater.
W1 - 3/4" supply; one T to 40000 btu water heater, inline to 6000 btu corner heater.
E2 - 3/4" supply; one T to 50000 btu water heater, inline to 6000 btu corner heater.
W2 - 3/4" supply; one T to 50000 btu water heater, inline to 11500 btu corner heater.
Attic & Commons
1-1/4" supply, 45' ;
1st floor T to 100000 btu furnace and 50000 btu laundry water heater
2nd floor T to 35000 btu clothes dryer
End point 1-1/4" to 1" T, NW Attic.
Continuing with 2) 1" lines;
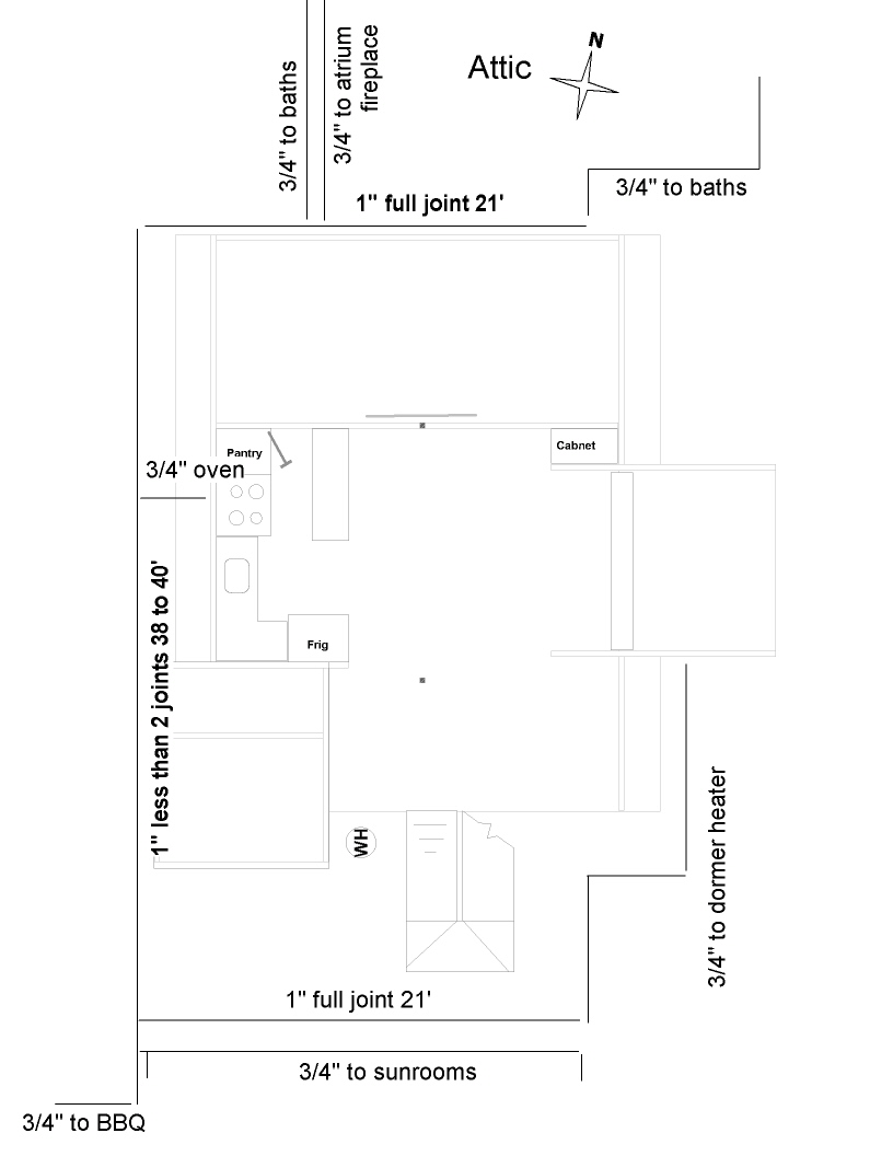
1st 1" line, 21' East-West.
1st T to 3/4" inline to 2) 8000 btu wall heaters in West rear baths, 2nd and 1st floors, total length 21', 1 full joint.
2nd T to 3/4" inline to outdoor 80000 btu fireplace.
3rd T to 3/4" inline to 2) 8000 btu wall heaters in East rear baths, 2nd and 1st floors.
2nd 1" line, aprox 40' North-South.
1st T to 3/4" inline to 70000 btu Range.
2nd T to 3/4" inline to Attic LvRm 18000 btu wall heater.
3rd T to 3/4" inline to 2) 6000 btu wall heaters.
4th T to 3/4" inline to 65000 btu 2nd floor BBQ grill.
Gallery & Office
3/4" supply, total length 80' ;
T to 3/4" for 40000 btu Bath water heater.
Inline to 3/4" for 24000 btu Gallery fireplace heater.
More images below




