Heater PDF files
Attic: Empire DVCD32-NAT All 6-5/8" vent parts for this heater
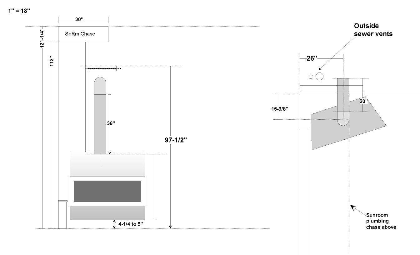
Gallery: Napoleon LHD45N
Living Rooms - SunRoom Napoleon GT8N All 5" vent parts for this heater
Rear Baths: Rinnia RHF265
Gallery Vent - 1st Draw

2 HomeClick.com orders Phone: (888) 837-5313
Order #1 - 1580540
1. (1) EMPDVD32FP31N - Empire Comfort Systems/Empire Comfort
Systems Deluxe 32" Direct Vent Fireplace with Millivolt Control
2. (1) SDV46DVA-48 - DuraVent 48 in Venting Pipe 4 in x 6 5/8 in DirectVent Pro
3. (1) SDV46DVA-E90 - DuraVent 90 Elbow 4 in x 6 5/8 in DirectVent Pro
4. (1) SDV46DVA-F12 DuraVent 7/12-12/12 Steep Roof Flashing - 4 in x 6 5/8 in
5. (1) SDV46DVA-SC DuraVent Storm Collar 4 in x 6 5/8 in DirectVent Pro
6. (1) SDV46DVA-VC DuraVent Low Profile Termination Cap 4 in x 6 5/8 in
7. (1) SDV46DVA-12 DuraVent “12 in” Venting Pipe 4 in x 6 5/8
8. (1) EMPFRBTC Empire Comfort Systems/Empire Comfort Systems Battery Operated Remote Control with Thermostat
9. (1) EMPFBB-4 Empire Comfort Systems Variable-Speed Blower with
Temperature Kit
10. (1) NPLGT8N Napoleon The Torch Direct Vent GT8N
11. (1) NPLTFSS Napoleon Torch Frame/Front GT8N Front Finish Frame/Front Finish=Brushed Stainless Steel
12. (1) NPLGDT110
Napoleon/Napoleon Roof Terminal Kit for GT8 Model/Choose Roof Type=1/12 to 7/12 Pitch
13. (1) NPLGDT113
Napoleon Roof Terminl for GT8
14. (1) NPLGDT10 Napoleon Vent Kit for GT8 10 Ft Flex Aluminum Liner
------------------------------
HomeClick.com Order #2 - 1581262
1 SDV46DVA-WS - M&G DuraVent/M&G DuraVent Wall Strap, 4 in x 6 5/8 in DirectVent Pro
2 SDV46DVA-ES - M&G DuraVent/M&G DuraVent Elbow Strap, 4 in x 6 5/8 in DirectVent Pro
3 NPLBM6790 - Napoleon/Napoleon 7" 90 Degree Elbow
4 NPLRV436 - Napoleon/Napoleon 36" Length Vent Pipe
5 NPLRV420 - Napoleon/Napoleon 20" Coupler
6 NPLGD-222R - Napoleon/Napoleon Round wall terminal
-------------------
1 SupplyHouse.com order Phone 1 888 757-4774
Order # 2201250
1. (2) Rinnai EX11CN 11,000 BTU, Beige Direct Vent “Wall Furnace” 44W, 120V, 128.5 CFM (Natural Gas)
2. (2) Rinnai 60" to 80" Vent Pipe “Extension” for EX11C
SKU: FOT-157