Nav

Rear Bath Electrical

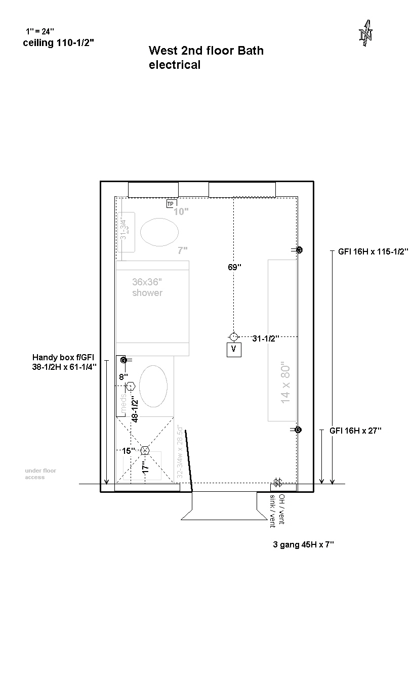
W2 E2
W1 E1