Nav

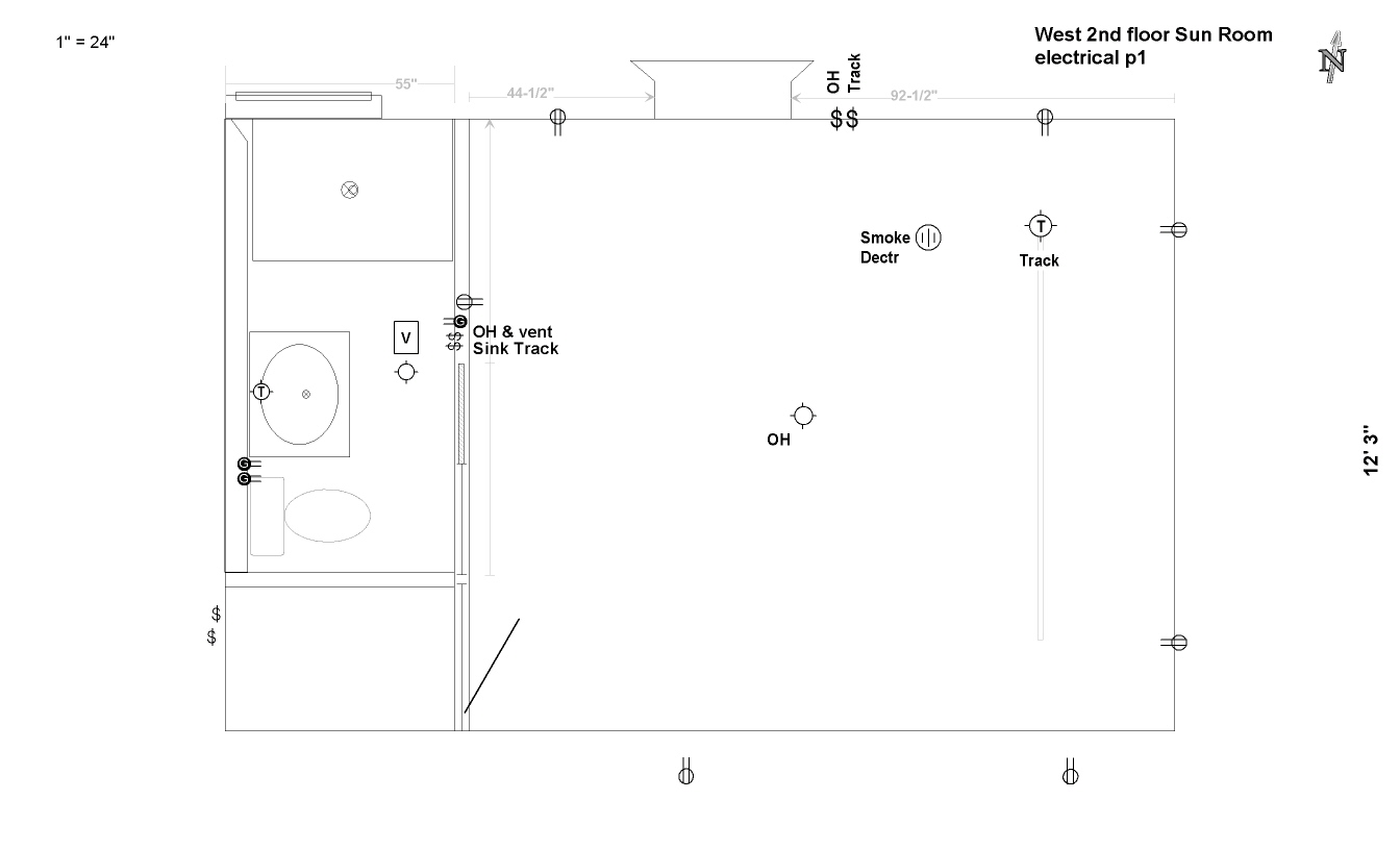
W2 - Sun Room    /    E2 Below

 

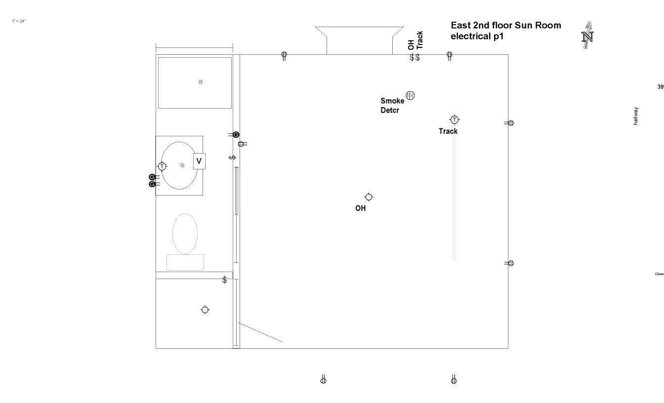
E2 - Sun Room    /    W2 Above