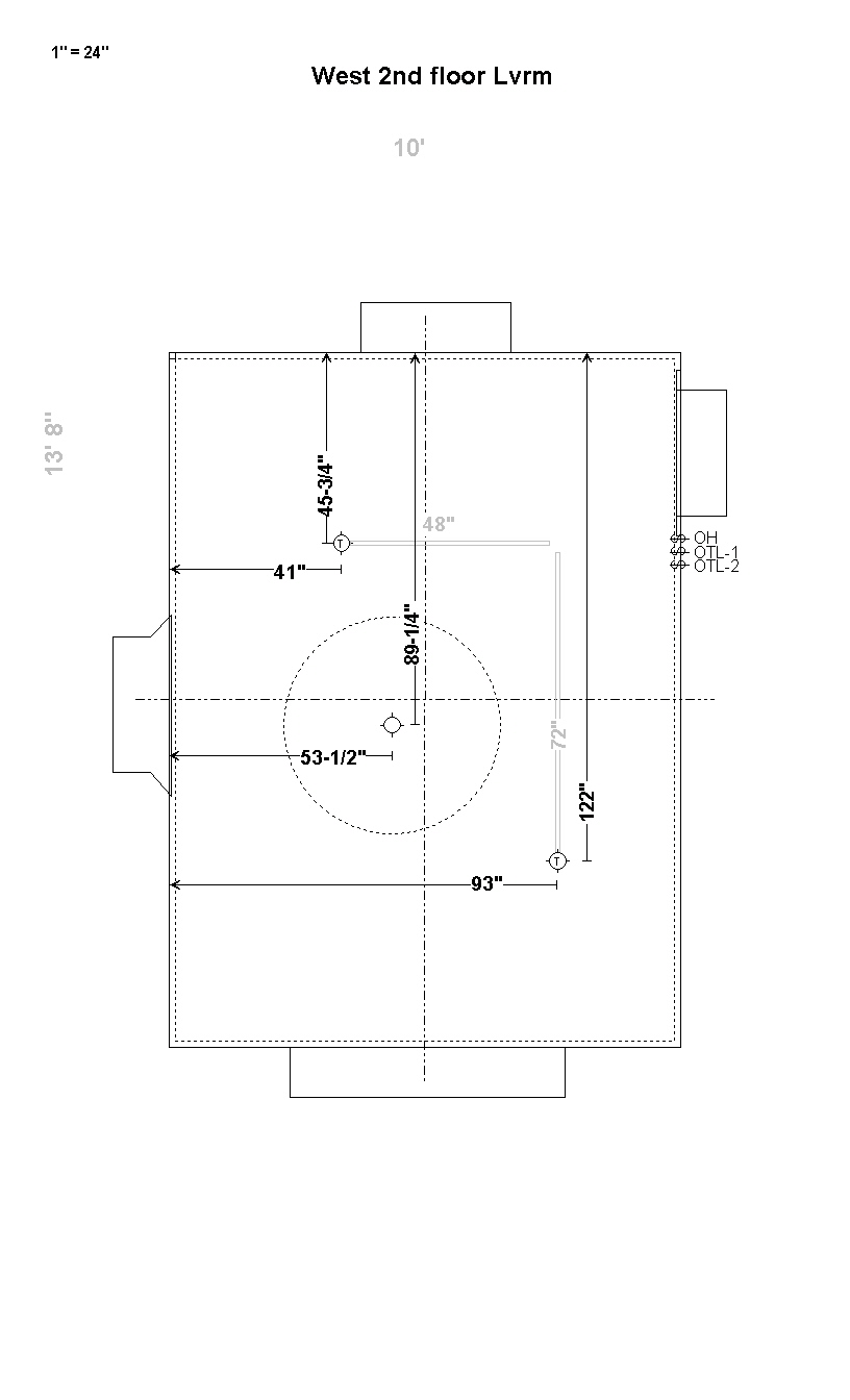
Nav    1st Floor                                                                                2nd Floor Ceiling Outlets

                                                                                                               East Units ->