Nav                                            E1 Rear Bath

W2 Sun Room Bath E2 Sun Room Bath
W2 Bath E2 Bath
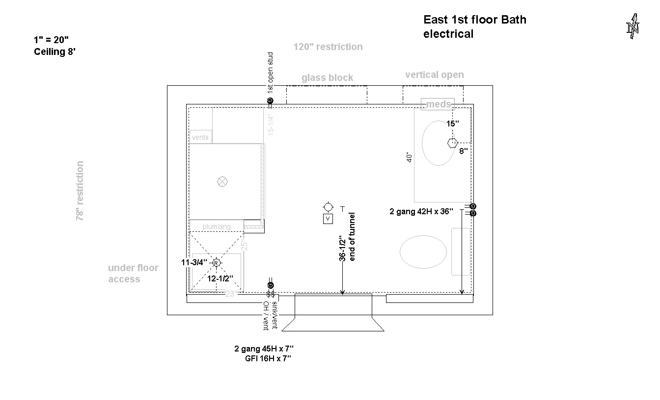
W1 Bath E1 Bath

East - West Elevations below