Nav

w2 e2 Attic
w1 e1 Commercial

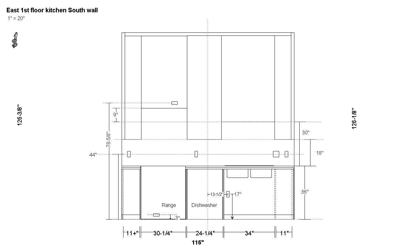
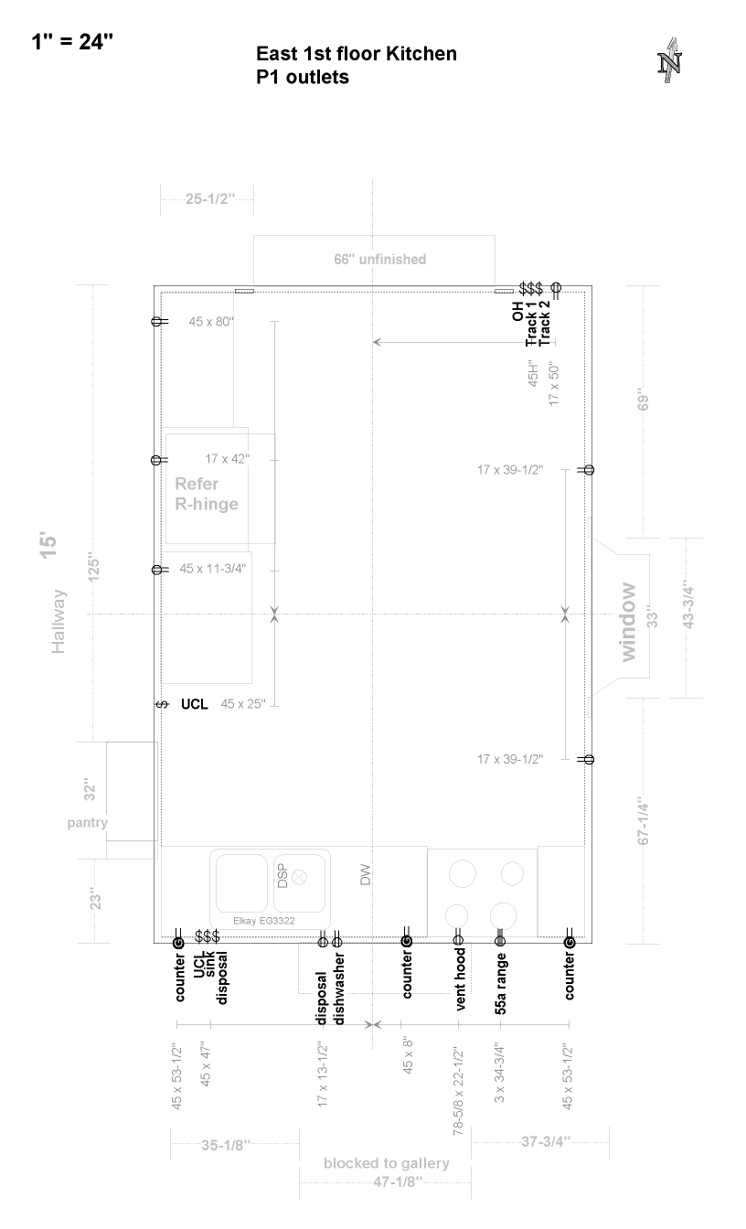
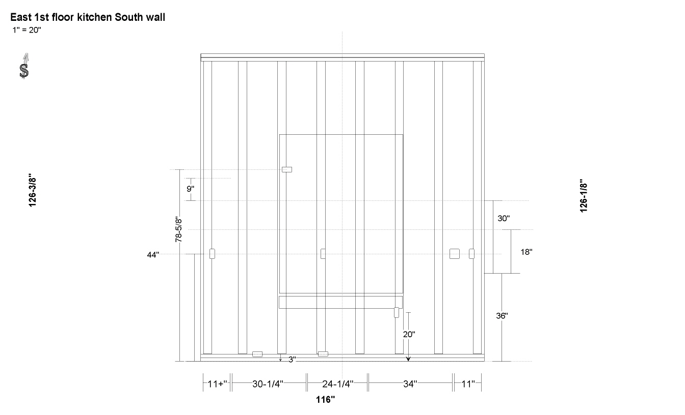
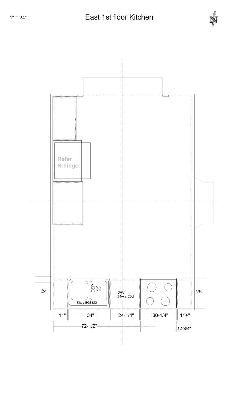
These 4 images are coordinated to .05"  The scale changes to 1" = 20" in the elevations.

 

 

Scale Change