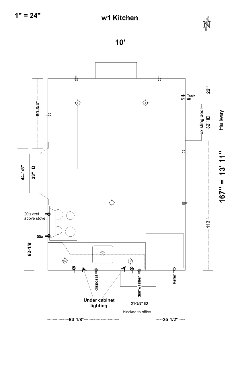
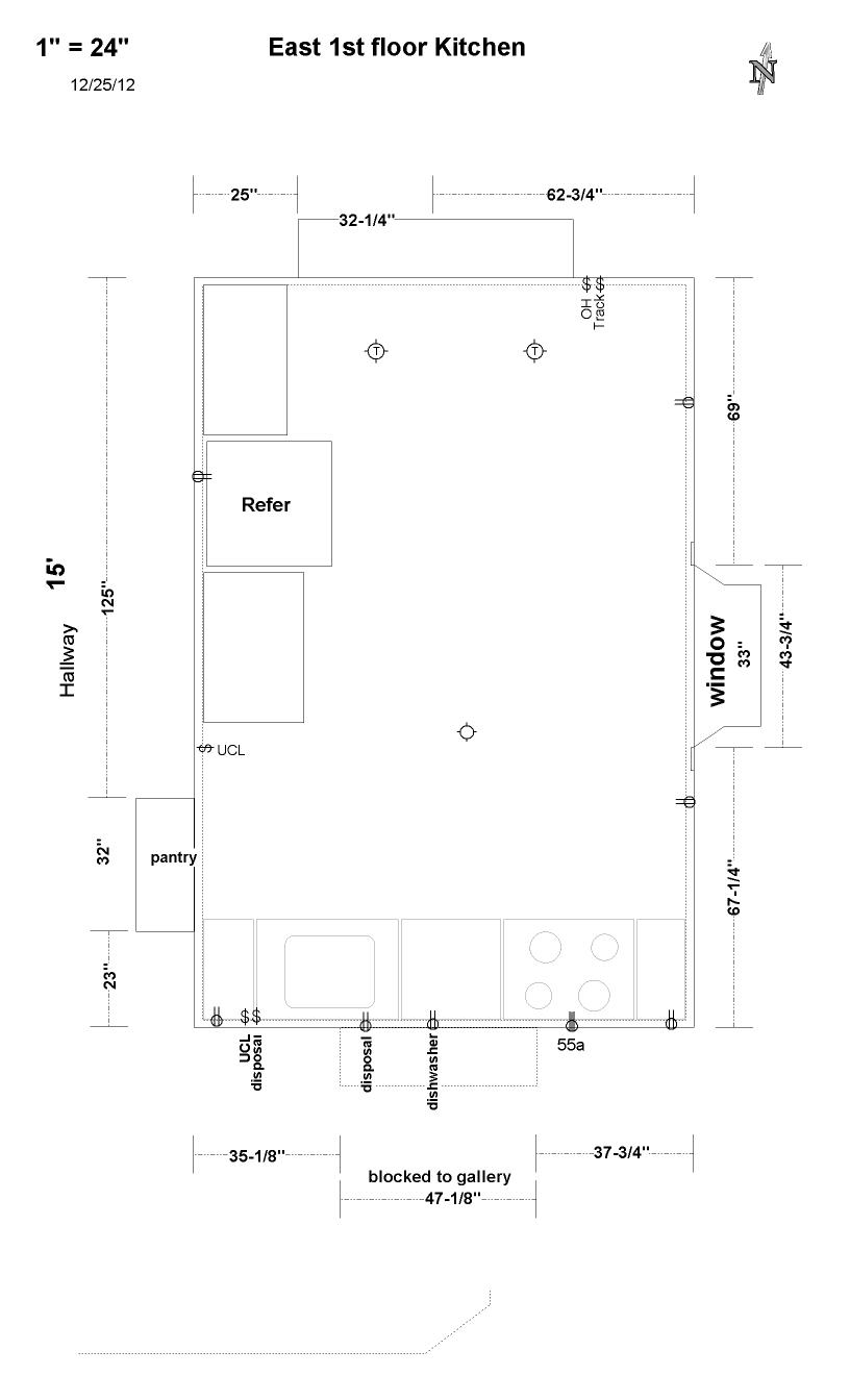
Nav                            Final Kitchen Drws