Nav

 

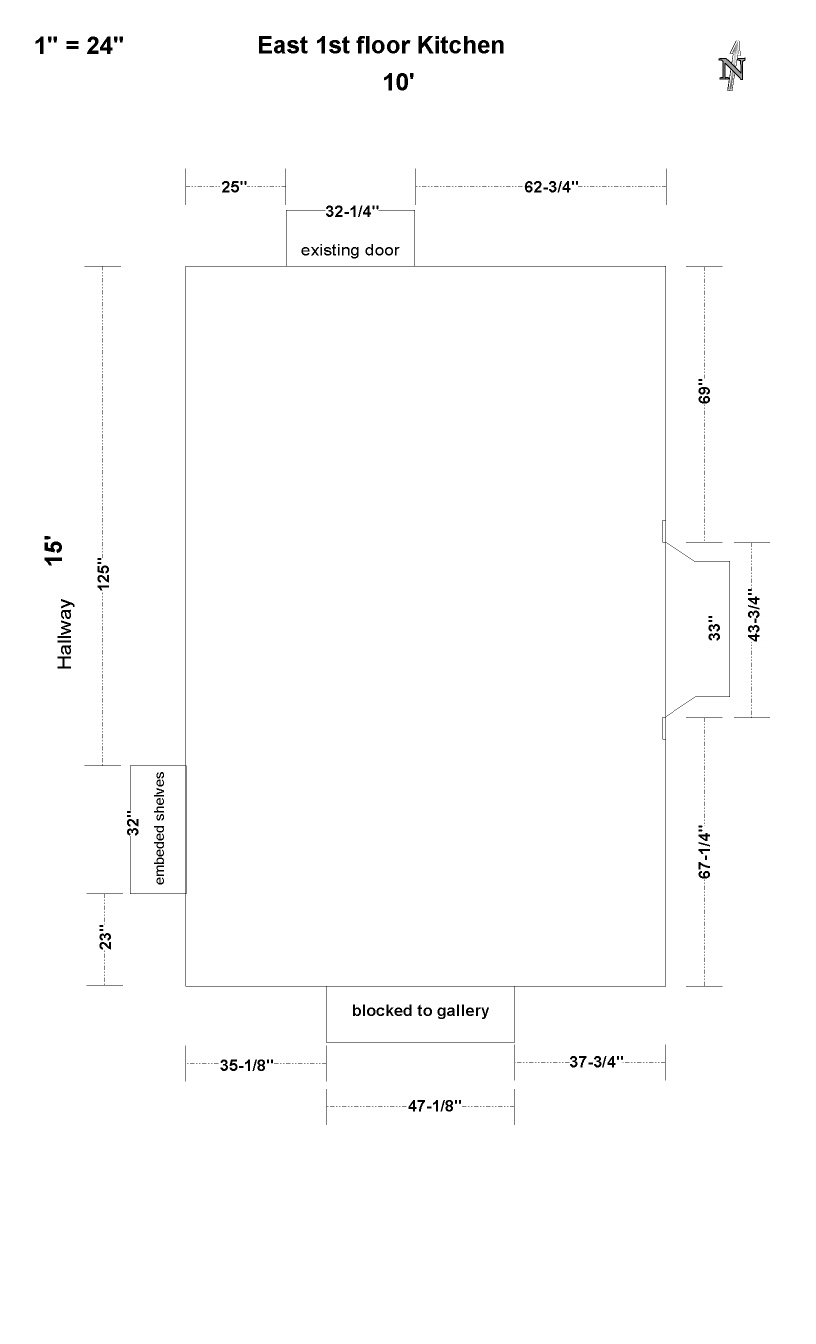
E1

 

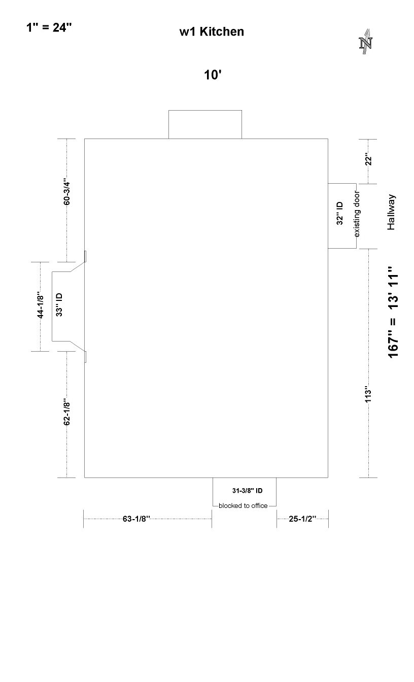
W1

 

E2

 

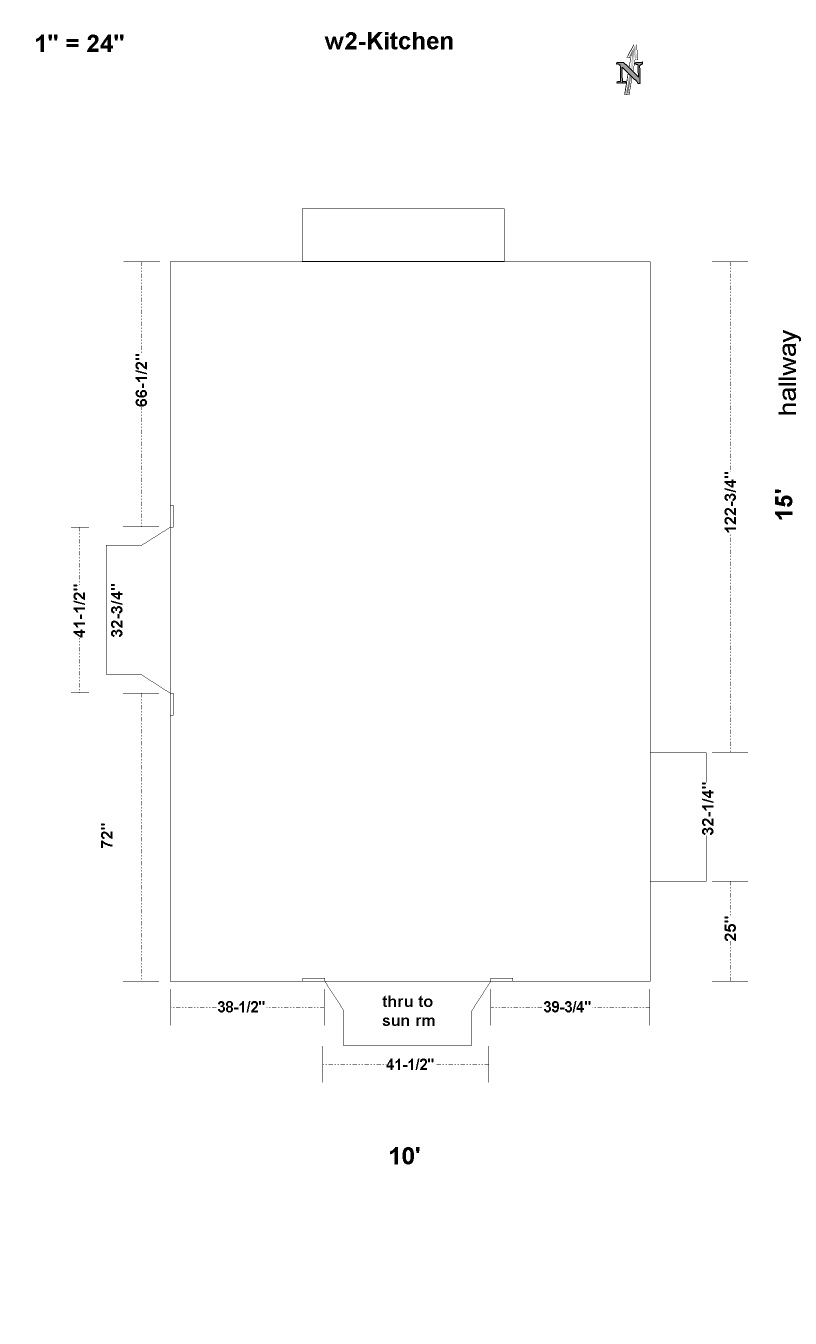
W2