Home

Porch cut-away Studded Wall West  F8 Balcony (top view) F16
Runner Detail  F2 Studded Wall East  F9 Fastener Detail F17
Sub-floor detail 1  F3 Floor Plan  F10 Column Finish Detail F18
Sub floor (side)  F4 Railing Specs F11 East Wall Cut F19
Floor Detail 2  F5 Upper Column F12 Support Column (outer)
Drainage Channel  F6 Plumbing F13 Support Column (center)
Downspout Detail  F7 Electrical F14 Beam Construction
Wall Removal F15

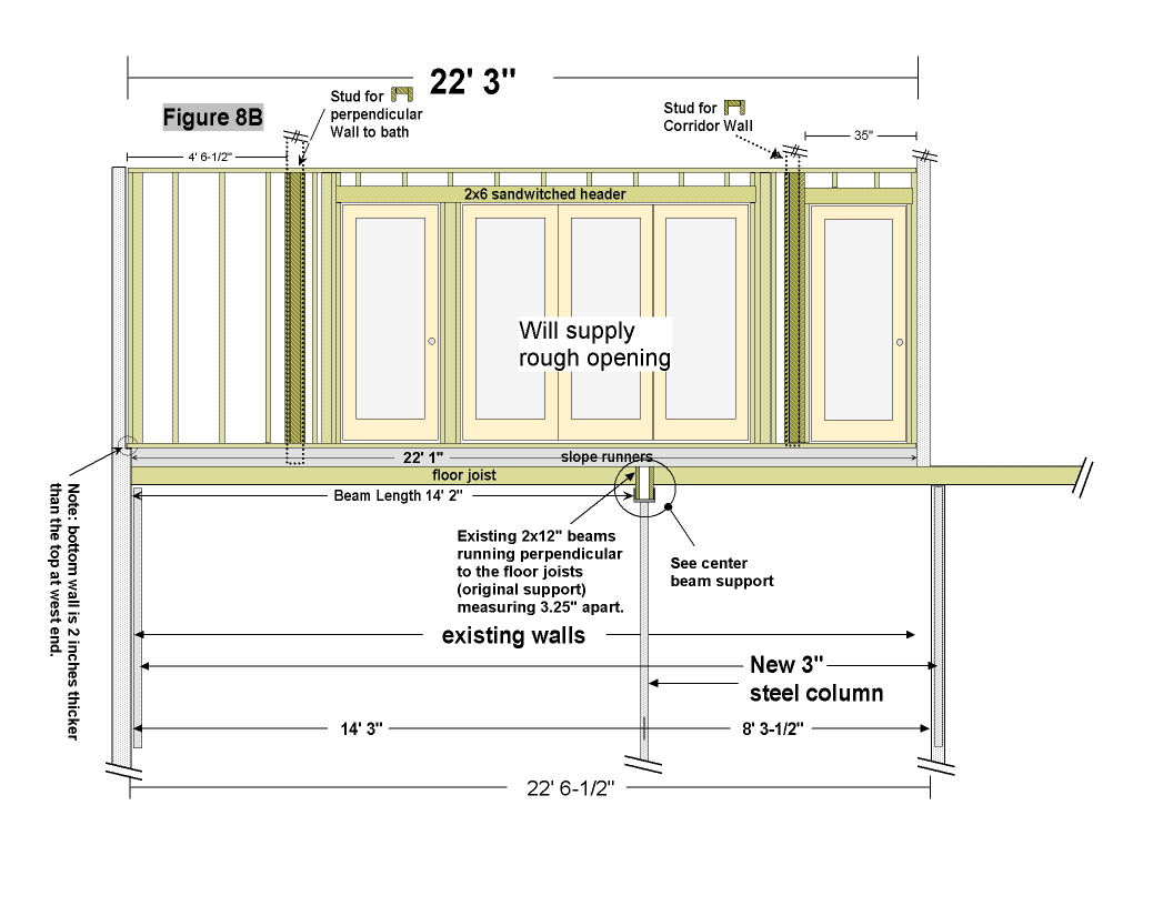
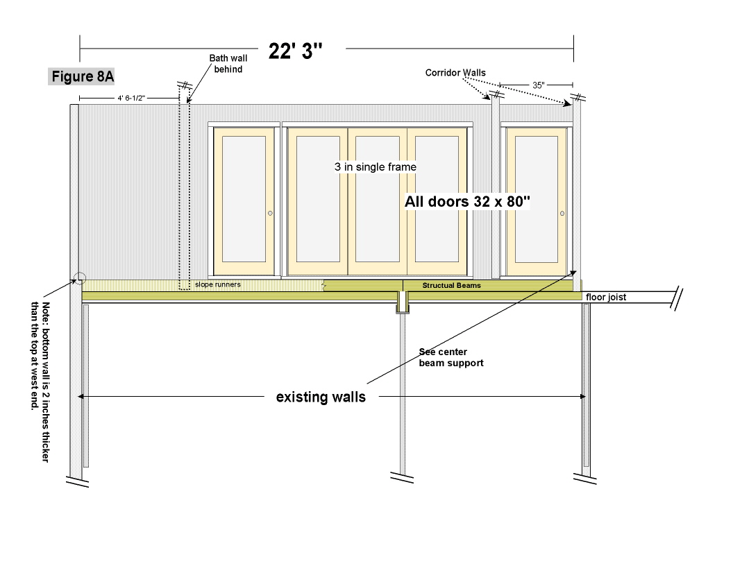
Rough out shown below

Top