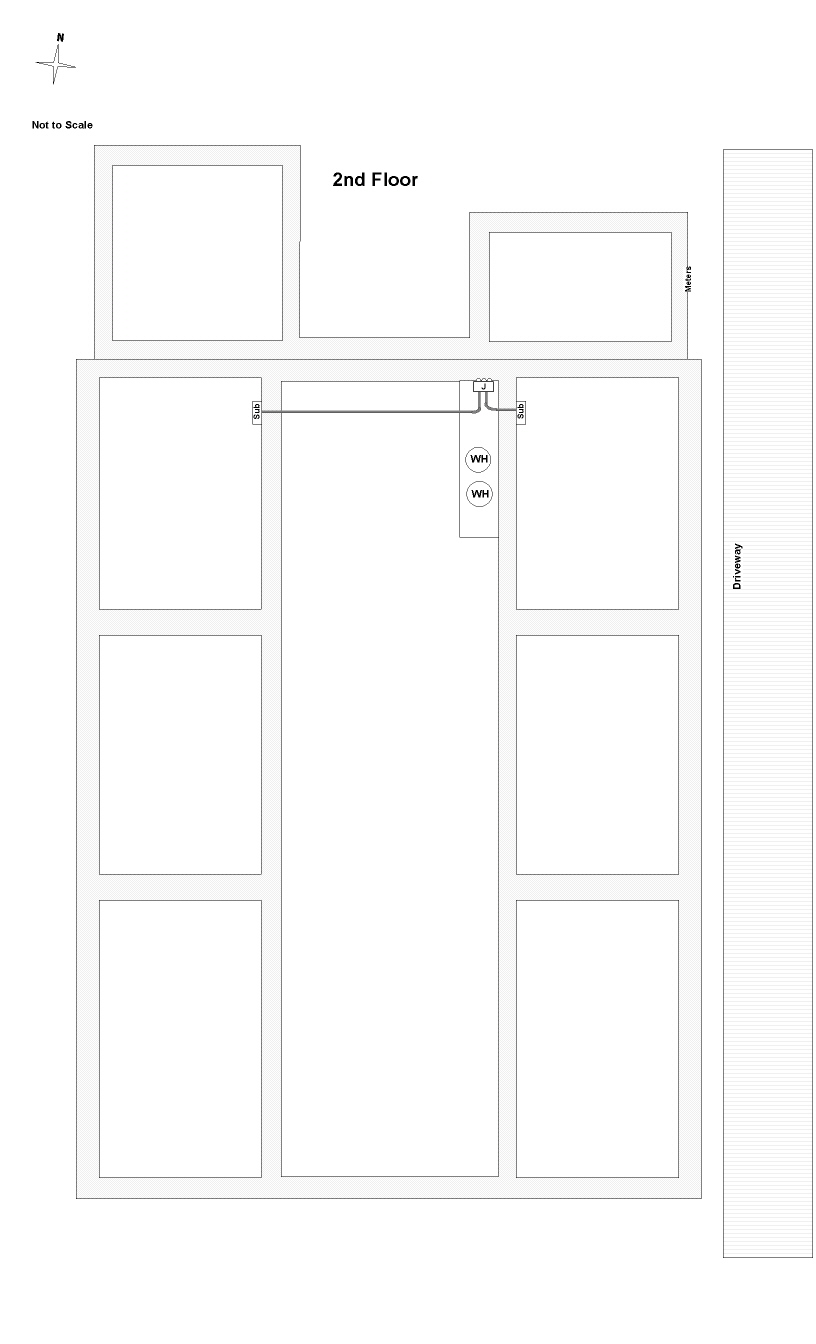
Nav 2nd Floor U2e U2w
Js 1st Floor U1e U1w C1 Front

 

Click links to view unit Sub-panel supply routes.