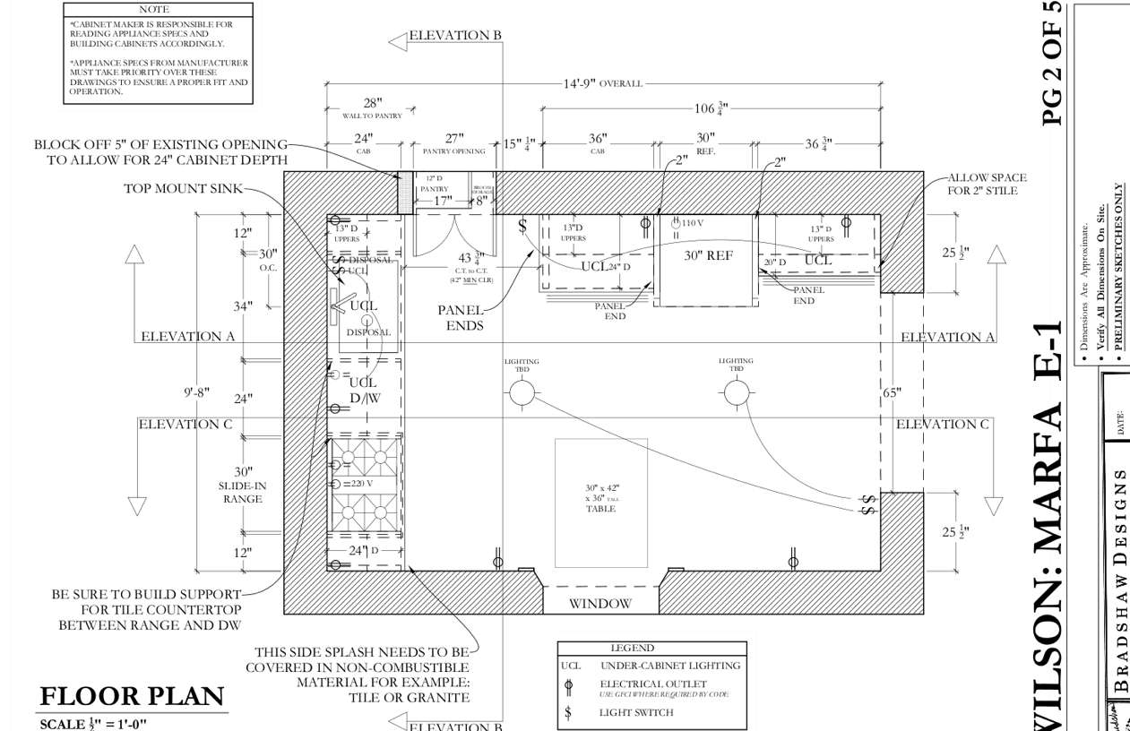
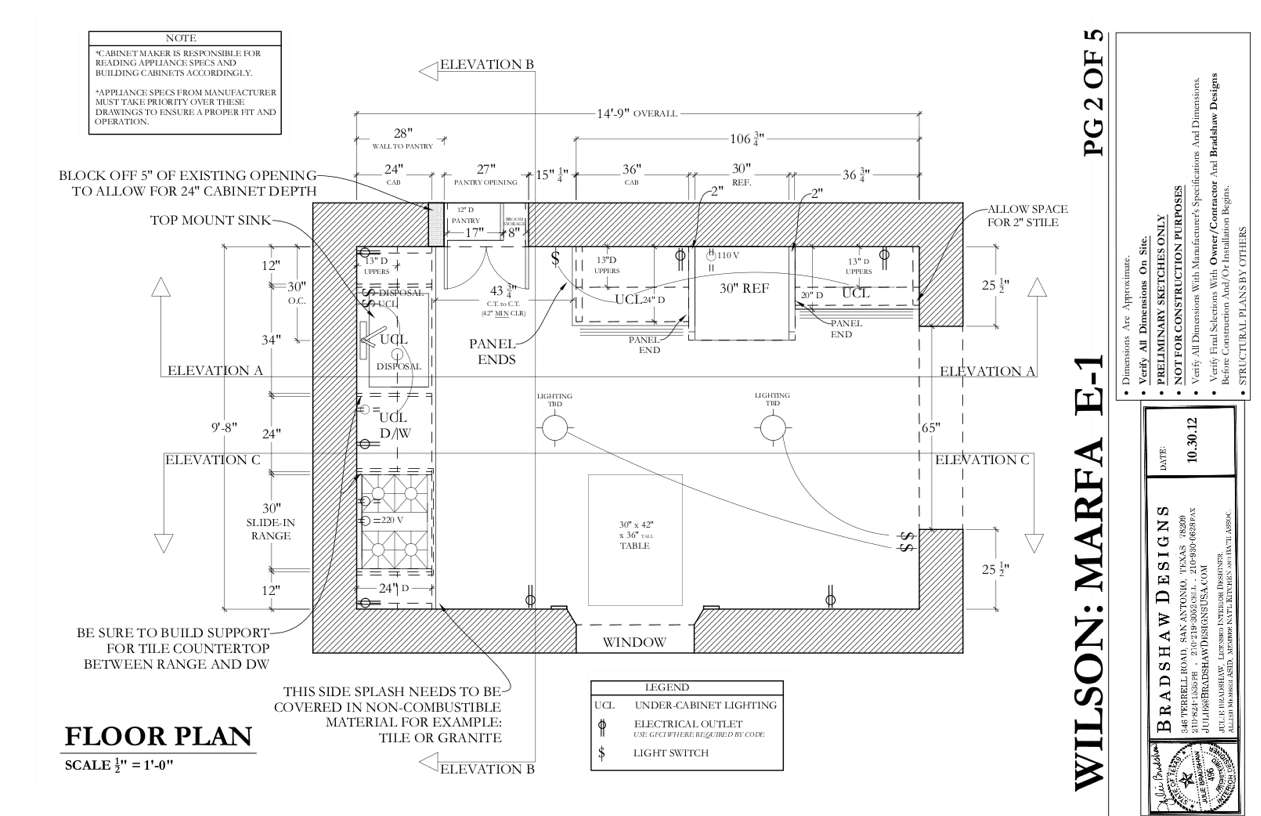
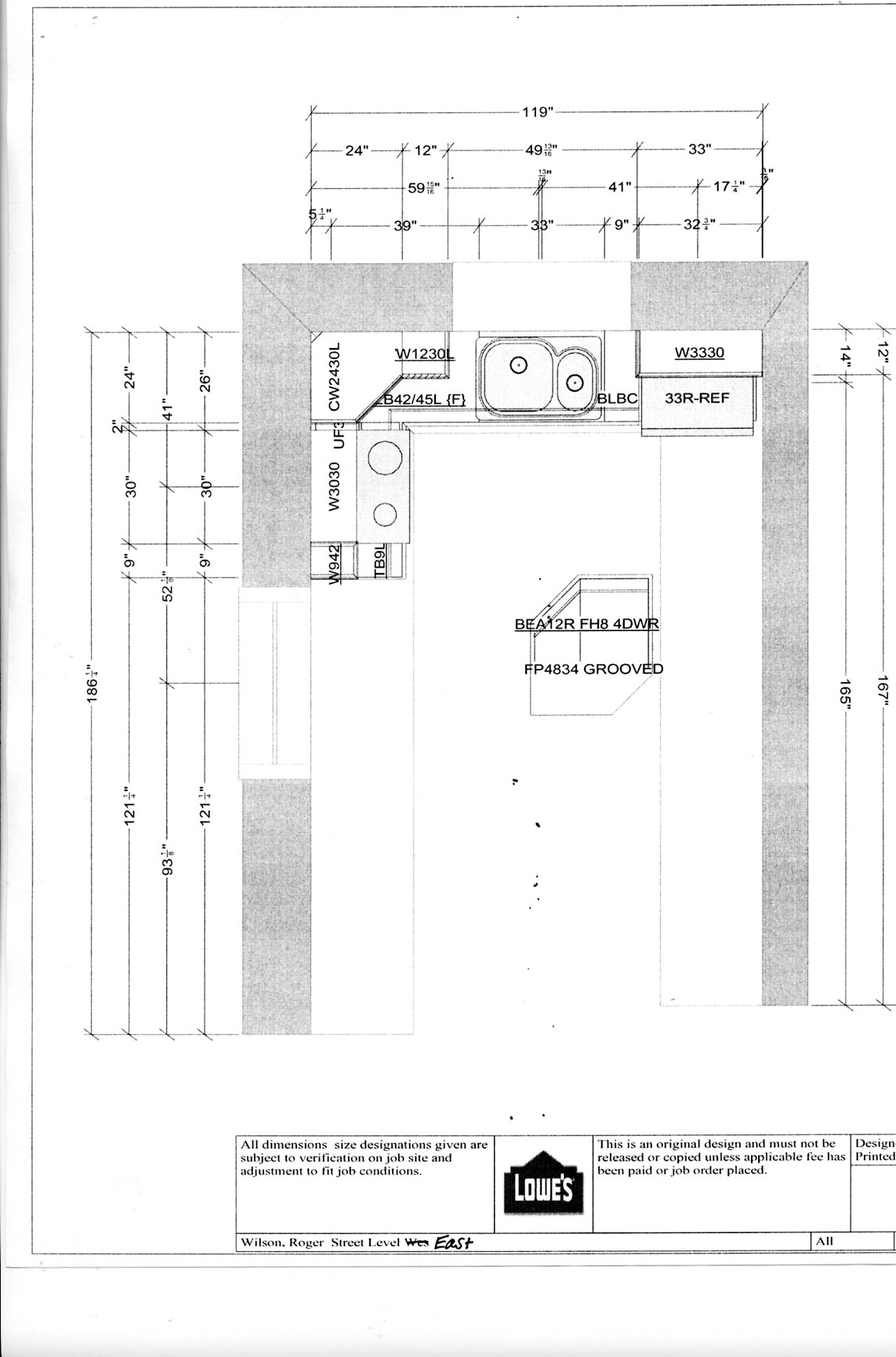
Cabs